















Contexte
-> Transfert de la pharmacie
-> Développement des nouvelles missions du pharmacien : besoin d’un espace de confidentialité, zone PDA, espace orthopédie
-> Offre très différenciante, basée sur le naturel : gemmothérapie, aromathérapie, phytothérapie, apithérapie (positionnement du groupement PharmO’naturel)
-> Volonté de développer fortement les nouvelles missions comme relais de fidélisation et croissance
Lieu
Mimisan (40)
Date
2023 et 2025
La mission
Optimiser l’organisation de l’espace pour valoriser l’offre et améliorer l’expérience client
Accompagner la mise en place des nouveaux services et créer des zones dédiées
Définir une stratégie merchandising globale cohérente avec les ambitions du projet
Mettre en valeur les univers différenciants, notamment les produits naturels
Former l’équipe aux règles fondamentales du merchandising pour pérenniser la démarche
Former les équipe à la mise en place des nouvelles missions (Vaccination, Bilan Partagé, TROD (cystite et angine), Remise du Kit de détection du cancer colorectal, Entretien femmes enceintes et opioïdes)
Les éléments mis en place
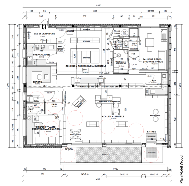
Stratégie merchandising et zoning
- Élaboration du store planning sur la base des plans architecte/agenceur
- Allocation stratégique des univers produits selon les priorités commerciales de l’équipe
Agencement des zones spécifiques
- Conception 3D des zones de confidentialité
- Réalisation de plans merchandising détaillés pour une implantation produits claire et logique
- Définition de la signalétique à mettre en place (produits et zones de services)
- Calcul et préconisation de l’accastillage nécessaire (broches, étagères, bacs…) en lien avec les plans pour les remettre à l’agenceur
Dynamique commerciale
- Création d’un planning d’animations commerciales (temps forts de l’année, thématiques)
- Définition des temps forts de l’année, thématiques
- Remise du planning des opérations définies avec une check liste pour une mise en place facilité et un suivi de la performance de chaque opération
- Mise en place des TG (têtes de gondoles) avec suggestions de contenus et rotations
- Création de templates d’affiches évènementielles (promotion, nouveauté, thématique)
Transmission et formation de l’équipe
- Formation au « merchandising : les règles d’or » pour une prise en main durable
- Objectif : donner à l’équipe les clés pour faire vivre la stratégie dans le temps, de manière autonome et pérenne
- Remise d’un livret des règles d’or et d’une chek list hebdomadaire
- Remise d’un book merchandising de la pharmacie
- Formation aux nouvelles missions : Vaccination, Bilan Partagé, TROD (cystite et angine), Remise du Kit de détection du cancer colorectal, Entretien femmes enceintes et opioïdes
- Comprendre pourquoi ces missions deviennent indispensables (contexte, stats et comparaisons nationales)
- Remise de fiches synthétiques par missions permettant de revoir en un coup d’œil les informations principales de chaque mission :
- durée et lieu
- rémunération
- quelques points d’épidémiologie quand cela est nécessaire
- résumé du déroulé de l’entretien
- comment aborder les patients au comptoir
- l’importance du rôle de chacun dans la réalisation d’un mission : le pharmacien, le préparateur, l’étudiant en pharmacie
- les outils pour le patient
- les outils pour la pharmacie
- remise d’un planning de communication pour soutenir le discours au comptoir
- mise en place d’outils pour repérer rapidement les cibles versus les missions, créer des alertes, planning de RDV, fiches de responsable de mission
- tableaux de suivis des missions et analyse de performance de la mise en place des missions
L’avis du client
« J’ai contacté Alexandra car son profil m’intéressait particulièrement : une connaissance de la pharmacie d’officine mais aussi d’autres points de vente et de showrooms, ce qui lui permet d’avoir une vision enrichie de ses multiples expériences. Je voulais proposer une pharmacie lumineuse et chaleureuse, un peu différente de l’officine traditionnelle dont les murs sont couverts de multiples rayonnages et les vitrines recouvertes de vitrophanies publicitaires, sans lumière naturelle.
Avant mon transfert, Alexandra s’est imprégnée de mon choix de produits bio et naturels et m’a aidée à revoir le merchandising afin de mettre en valeur les jolies gammes déjà en place, sans acheter de nouveaux meubles avant de déménager, dans un souci économique et écologique. Ce qui nous a permis de commencer à imaginer le nouveau lieu.
Lors de la construction de la nouvelle pharmacie, elle m’a accompagnée afin de préparer au mieux ce transfert : comment positionner chaque gamme pour mettre en valeur les produits et faciliter le parcours client, tout en ayant un espace de travail hyper agréable et optimal pour favoriser le conseil et l’accompagnement de nos patients.
Cet accompagnement a été précieux et je la remercie pour cela. »
Marion Mallet, pharmacienne titulaire, Pharmacie d’Onnesse